Descriptif
Le panneau de délimitation Limitot en béton est idéal pour assurer la sécurité dans les espaces publics et assurer la confidentialité des utilisateurs.
- Composé d'une base béton renforcée pour assurer la robustesse et la stabilité de la borne ainsi qu'une partie grillagée afin de donner un côté plus aéré.
- Permet de délimiter un espace sur la chaussée, empêcher le stationnement sauvage ou de créer un espace plus sécuritaire pour les utilisateurs.
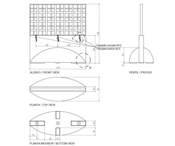
Dimensions du déliminitateur Magourban Limitot

Caractéristiques
- Fabrication
- Espagne
- Garantie (mois)
- 12
Avis vérifiés de Panneau de délimitation en béton - Limitot
Questions / Réponses
Soyez le premier à poser une question sur ce produit !